Mono Slide
Glavni razlog je uporaba enotne zasteklitve.
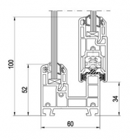
ZA BALKONE IN TERASE
- Sodoben sistem drsnih vrat, saj si na terasi ali na vrtu
- Izjemno tiho in gladko delovanje, ki ga omogoča uporaba nerjaveča jeklena tirnica
- Ne povzroča hrupa premikajočih se delov, preprosta funkcija listov, brez možnosti nagiba
- Z uporabo ti. ščetke tesnila na spoju krila in okvirja in med kril
- Rešitve, ki ne bodo delovale v težkih zimskih podnebjih, vendar je popolnoma funkcija v toplejših območjih, npr. v sredozemskih državah.
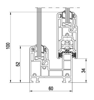
ZA BALKONE IN TERASE
- Sodoben sistem drsnih vrat, saj si na terasi ali na vrtu
- Izjemno tiho in gladko delovanje, ki ga omogoča uporaba nerjaveča jeklena tirnica
- Ne povzroča hrupa premikajočih se delov, preprosta funkcija listov, brez možnosti nagiba
- Z uporabo ti. ščetke tesnila na spoju krila in okvirja in med kril
- Rešitve, ki ne bodo delovale v težkih zimskih podnebjih, vendar je popolnoma funkcija v toplejših območjih, npr. v sredozemskih državah.




